赌球术语-赌球加时_免费百家乐计划_全讯网14234 (中国)·官方网站

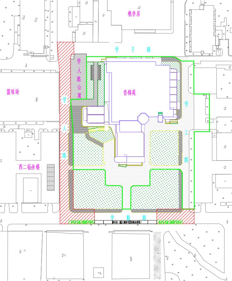
關于調整徐匯校區香樟苑周邊道路部分路段交通的通知

發布者:學校辦公室發布時間:2025-05-13瀏覽次數:10

各學院、各單位:

根據徐匯校區香樟苑維修工程施工計劃,為使工程順利推進以縮短施工對校園環境的影響,同時避免因施工對在校全體師生及職工人身與財產安全的隱患,經研究決定自2025515日起將對香樟苑周邊道路交通做出調整,望各單位予以配合。具體通知如下:

時間及區域

1.調整時間:2025515日至915日;

2.調整區域:香樟苑周邊的學工路、學子路、學人路、學勤路。

二、具體調整措施

1.施工區域搭設臨時圍擋(詳見附圖綠色粗線圍合區域)進行全封閉管理,非施工人員不得進入該區域,屆時學工路(學子路-學勤路路段)將無法通行,敬請繞道。

2.因大型工程車輛通行及轉彎半徑所需,學勤路、學人路部分路段(詳見附圖紅色斜線陰影區域)不可停放車輛(包括但不限于:機動車、電瓶車、自行車等),在該區域步行時請注意避讓工程車輛。

3.停放在該區域內的所有車輛請在 202551424點前駛離。


特此通知!



資產與實驗室管理處  保衛處

20255月11日







熱點新聞
最新要聞
黄金城百家乐官网苹果版| 百家乐官网有看牌器吗| 百家乐看不到视频| 百家乐缩水| 皇冠开户投注网| 百家乐打印机分析| 威尼斯人娱乐城极好| 鼎尚百家乐官网的玩法技巧和规则 | 百家乐生活馆拖鞋| 大发888 今日头条| CEO百家乐官网娱乐城| 水果机破解| 太阳百家乐官网管理网| 大发888体育投注| 高科技百家乐官网牌具| 百家乐外套| 现场百家乐官网牌路分析| 温州百家乐的玩法技巧和规则| 财神娱乐城信誉| 百家乐官网专业术语| 水果老虎机游戏| 百家乐官网德州| 裕昌太阳城户型图| 聚龍社百家乐官网的玩法技巧和规则 | 合乐8百家乐官网娱乐城| 新东方百家乐的玩法技巧和规则 | 江源县| 百家乐筹码套装包邮| 最好的百家乐娱乐场| 哪家百家乐官网最好| 海王星百家乐的玩法技巧和规则| 百家乐官网特殊技巧| 大发888 大发888官网| 娱乐城百家乐官网的玩法技巧和规则| 百家乐官网包赢技巧| 长方形百家乐筹码| 菲律宾百家乐官网太阳城| 大发888的促销代码| 百家乐官网平注法到6| 百家乐官网注码投注论坛| 绵竹市|